Vollständige Adresse
Grundnutzungsgebühr
Betriebskosten
Zusatzkosten
Nutzungsgebühr
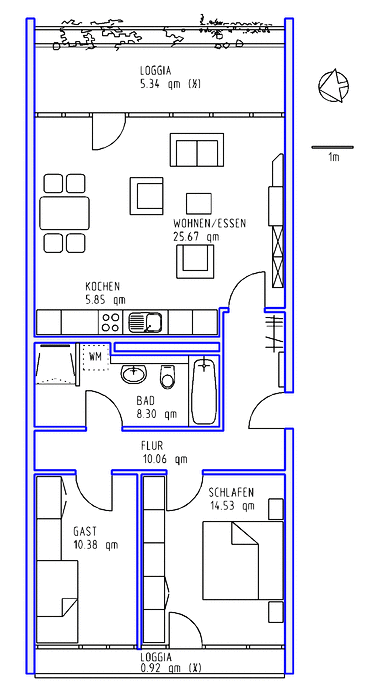
Wohnungsgröße
Baujahr
Energieausweisart
Heizart
Effizienzklasse
Primärenergiebedarf
Zusätzliche Informationen
Zuteilungsgrundsätze
Wenn Sie sich bei unserer Genossenschaft um eine Wohnung bewerben möchten, beachten Sie vorab bitte unsere Zuteilungsgrundsätze:
Ihr Nettoeinkommen sollte drei Mal so hoch sein wie die Brutto-Nutzungsgebühr (Warmmiete) – ohne Transferleistungen wie beispielsweise Wohngeld oder Zuschüsse vom Jobcenter (1.053,50 € x 3 = 3.160,50 € ).
Bei Zuteilung der Wohnung durch den Genossenschaftsvorstand müssten Sie die Mitgliedschaft begründen, indem Sie Genossenschaftsanteile übernehmen.
Informationen zum Wohngebiet ➔
Die Herzogenried-Siedlung befindet sich im Norden des Stadtteils Neckarstadt-Ost, einem der sechs inneren Stadtbezirke.
Die Fahrzeit von der Herzogenried-Siedlung ins Stadtzentrum Mannheims beträgt mit öffentlichen Verkehrsmitteln zwischen 10 und 15 Minuten. Mit der Integrierten Gesamtschule Mannheim-Herzogenried ist zudem eine der größten Ganztagsschulen Mannheims fußläufig erreichbar.
Ein Lebensmitteldiscounter sowie ein Supermarkt finden sich ca. 10 bis 15 Gehminuten entfernt am Neuen Messplatz.
Im Zuge der Bundesgartenschau 1975 wurde die Siedlung zwischen 1974 und 1977 als Mustersiedlung zum Thema Wohnen im Grünen erbaut. Daher ist zum einen der Durchgangsverkehr aus dem Wohngebiet verbannt worden, zum anderen existiert ein direkter Zugang zum Herzogenriedpark. Dieser wurde ebenfalls anlässlich der Bundesgartenschau 1975 angelegt, dient als Naherholungsgebiet und bietet vor allem für Kinder mit dem Seilzirkus, der Spritzpistolenanlage, dem Höhlenlabyrinth und dem Mini-Zoo jede Menge Spaß und Abenteuer. Aber auch die Freunde des Laufsports sowie des Fuß- und Basketball finden im Herzogenriedpark geeignete Sportstätten vor.
Direkt angrenzend an den Herzogenriedpark befindet sich das Herzogenriedbad, Mannheims größte Freibadanlage. Das Freibad besticht mit schönen Grünanlagen, einem Schatten spendenden Baumbestand, Liegewiesen, Flächen für Sport und zahlreichen Spielmöglichkeiten.
In der kalten Jahreszeit können sich Freunde des Schlittschuhlaufens zudem im Eisportzentrum Herzogenried austoben. Zu bestimmten Zeiten ist dort das Eislaufen entweder Eltern mit Kind oder der Generation 50 Plus vorbehalten, um mit gemäßigter Geschwindigkeit gefahrlos über das Eis gleiten zu können.
Terminanfrage für einen Beratungstermin
Hinweis: Diese Terminanfrage dient NICHT zur Vereinbarung eines Besichtigungstermins.
Kontakt
K2, 12-13 68159 Mannheim
0621/18005-0
info@gartenstadt-genossenschaft.de
